Cardinal Cove - Nature Escape - 3 mi to Dam | House in Eureka Springs

3 Bedroom House in Sylvan Shores, Eureka Springs
Summary:
Welcome to Cardinal Cove in lovely Eureka Springs, Arkansas! Located near Beaver Lake, you'll find the water just a short 2-mile drive to Starkey Marina and park or 3-miles away at the gorgeous Beaver Dam Park. Our 3-bedroom, 3-bathroom home boasts large living spaces and amenities for up to 6 guests. Escape to Cardinal Cove for a relaxing and nature-filled getaway, with the beauty of Eureka Springs and the peacefulness of Beaver Lake just moments away.
The Space:
Highlights:
★ 2 miles to Starkey Marina and public swimming space!
★ 3 miles to the Beaver Dam and park.
★ 11 miles to Downtown Eureka Springs- explore shops, eateries, and artwork!
★ 3 private King bedrooms.
★ FOUR outdoor patio spaces with woodland views and BBQ grill.
★ Fully stocked kitchen.
★ Washer and dryer for guest use!
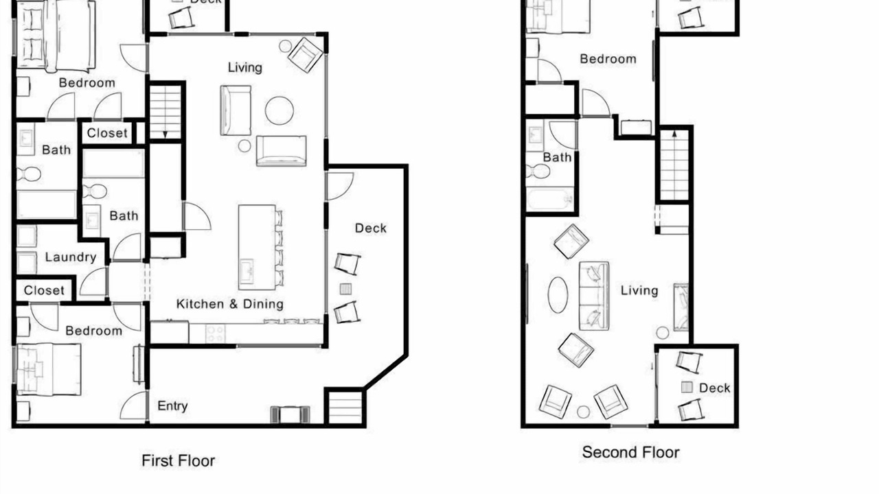
When you arrive at Cardinal Cove you will see the modern exterior surrounded by trees and the several patio spaces to take in the views! Inside, on the main floor you will see our spacious, open concept kitchen and living space surrounded by windows. Our kitchen is fully stocked with all the supplies needed to make a home cooked meal, baked goods, or to cook out on the grill. With new appliances, a coffee maker, and seating for 7 people we think this space will make you feel right at home. Also in this space, there is relaxing corner with two loveseats and a chair - the perfect place to curl up with a book!
Upstairs, you will find our main living space complete with more lounge seating for the whole crew, a 65-inch Smart TV to stream your favorite shows, and access to the upper patio space. There is even a Peloton bike to login to and keep up with your routine.
When it is time to turn in for the night, choose from one of our three private bedrooms:
(1) Primary bedroom - King size bed, 45-inch Smart TV, an attached bathroom, and a private patio space with 2 chairs.
(2) Second bedroom - King size bed, 45-inch Smart TV, a nearby bathroom, and access to the main patio.
(3) Third bedroom - King size bed, 45-inch Smart TV, a nearby bathroom, and a private patio space with 2 chairs.
The house's outdoor area is surrounded by woods and features two upper patios and a spacious lower patio. Take in the serene views and enjoy a laid-back BBQ on the gas grill.
Guest Access:
Guest Access & Amenities:
Guests will have access to the entire pictured house, all appliances, any kitchen supplies, and all amenities. We provide amenities in the bathrooms, kitchen, and laundry room with enough to get you started on your trip. We do not provide excess for more than a couple of days' worth, and guests are responsible for purchasing these items for personal use if they run out during their stay. Exterior cameras may be at the property for security purposes.
The Neighborhood:
Cardinal Cove sits on 0.93-acre lot with a spacious, wooded back yard and two neighboring houses. Beaver Lake is about a block away and the closest access point is Starkey Marina.
Getting Around:
Explore Eureka Springs and Beaver Lake! Our house is just 2 miles to Starkey Marina, 3 miles The Beaver Dam, and 11 miles to Downtown Eureka which offers several restaurants and shops.
Other Things to Note:
★ Not pet-friendly.
★ WiFi is satellite-based and not designed to support streaming or other high-speed activities.
★ Water levels are subject to change at any time due to environmental factors outside of the host’s control which may impact the accessibility and appearance of the lake. Cancellations due to water levels will not be honored outside of the cancellation policy. Guests are solely responsible for preparing for their stays accordingly by checking water levels ahead of their stays.
House Rules that are strictly enforced:
- Check-in is any time after 3:00 PM.
- No parties or events are allowed unless your request was pre-arranged with us, the host, and our event fee has been paid. If an un-approved party or event is discovered, you will be fined $1000.
- This property is not pet-friendly. Pets discovered at the property will incur a fine of $400.
- Unauthorized checkout delays will incur a fine of $100 per hour.
- This is a non-smoking home. If you smoke in the home, you will be fined $1000 plus the cost of any smoke remediation necessary.
Cardinal Cove - Nature Escape - 3 mi to Dam is located in Sylvan Shores. Cardinal Cove - Nature Escape - 3 mi to Dam provides accommodation, featuring Parking, TV, Balcony/Terrace, among other amenities. This House features Parking, TV, Balcony/Terrace, to make your stay a comfortable one.
Cardinal Cove - Nature Escape - 3 mi to Dam has 3 Bedrooms , 3 Bathrooms, and max occupancy of 6 people. The minimum rental for this property is 1 nights, but this can change depending on the season you plan on staying. Previous guests have given good rated it, and VRBO labeled it a top-rated House because of the excellent services rendered by the owner or manager of this House, and has consistently provided great experiences for their guests. Most families or guests that use it recommend it to their friends and some of them are repeat guests. House has a friendly neighborhood, and the Sylvan Shores has interesting places to visit. If you want to learn more about the House in Sylvan Shores, such as places to visit and things to do nearby, you can check below to learn more.
Amenities
Facility Overview
-
Heating
-
Air conditioning
-
3 bathrooms
-
Shower
-
Towels provided
-
Hair dryer
-
3 bedrooms
-
Bed sheets provided
-
Dishwasher
-
Coffee/tea maker
-
Cookware/dishes/utensils
-
Refrigerator
-
Microwave
-
Toaster
-
Stovetop
-
Oven
-
Laundry facilities
-
Washing machine and dryer
-
Onsite parking
-
No pets allowed
-
Smoke-free property
-
Marina nearby
-
TV
-
Unit size: 2042 sq ft (190 sq m)
-
In the mountains
-
On the lake
-
Office
-
Iron/ironing board
-
WiFi available
-
Balcony
-
Gas grill
-
Garden
-
Carbon monoxide detector installed (host has indicated there is a carbon monoxide detector on the property)
-
First aid kit
-
Fire extinguisher
-
Smoke detector installed (host has indicated there is a smoke detector on the property)
Policies
Extra-person charges may apply and vary depending on property policy government-issued photo identification and a credit card, debit card, or cash deposit may be required at check-in for incidental charges host has indicated there is a carbon monoxide detector on the property host has indicated there is a smoke detector on the property onsite parties or group events are strictly prohibited safety features at this property include a fire extinguisher and a first aid kit special requests are subject to availability upon check-in and may incur additional charges; special requests cannot be guaranteed this property is managed through our partner, vrbo. you will receive an email from vrbo with a link to a vrbo account, where you can change or cancel your reservation